Под стенами Дмитриевского собора построят кафе и гостиницу

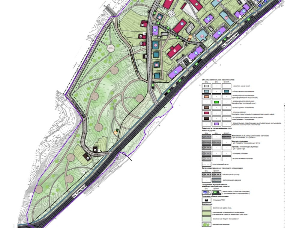
В историческом центре Владимира появится еще одна гостиница. Построят ее не в самом живописном на сегодняшний день месте – на улице Урицкого, зато в пешей доступности как до вокзала, так и до главных достопримечательностей города.
Проект разрабатывала компания «Архивариус» из Магнитогорска по заказу мэрии. Согласно нему, на участке 33:22:032029:521, который находится в 130 метрах вниз от Дмитриевского собора рядом с домом №26 по Урицкого, появится гостиница на 35 мест. Сейчас эта территория уже огорожена забором. А на улице Урицкого, 28 на месте старого дома построят кафе на 50 мест (участок 33:22:032029:27).

Документацию вынесли на общественное обсуждение. Оно продлится до 29 декабря. Оставить свои предложения можно на сайте мэрии, в управлении архитектуры и администрации Октябрьского района. Сроки реализации проекта не называются.
В будущем же, судя по всему, улицу Урицкого хотят полностью перестроить и превратить в прогулочную зону. В частности, на территории между валами и железной дорогой проектировщик нарисовал пешеходные дорожки со смотровыми площадками. Однако этот проект кажется совсем фантастическим.




Для отправки комментария необходимо войти на сайт.